
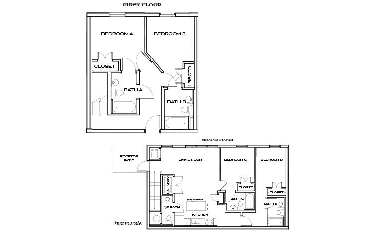
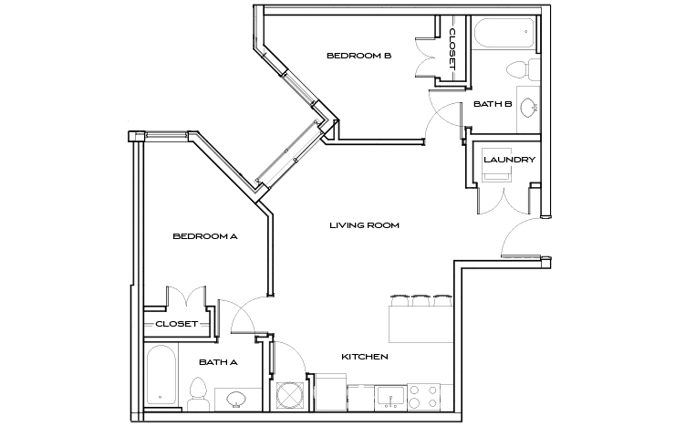
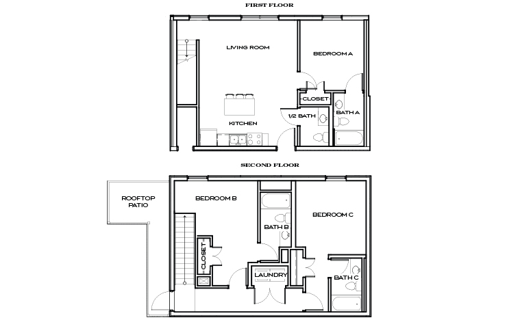
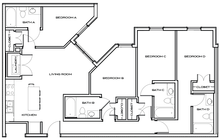
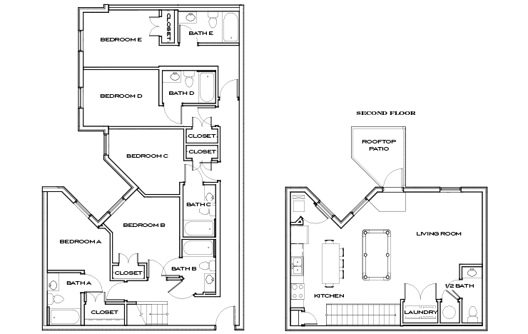
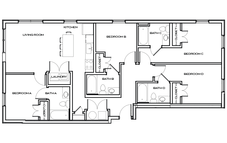
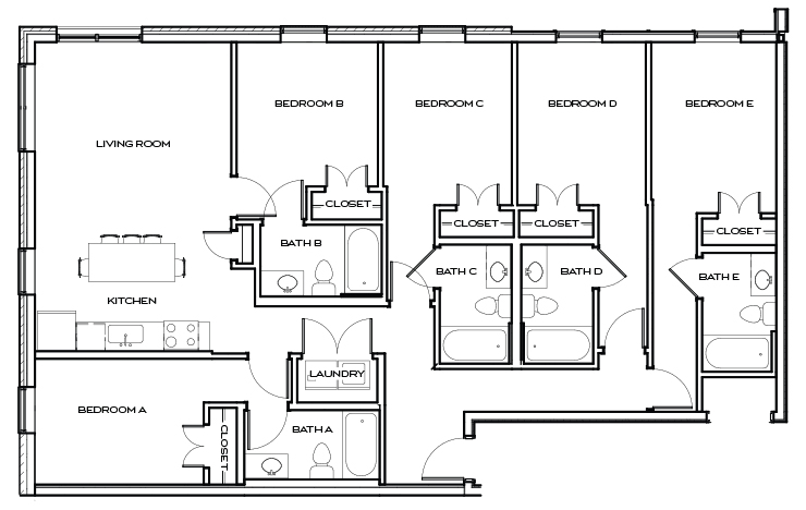
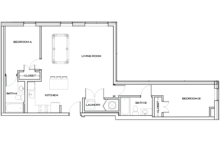
Here at The Standard at Knoxville, we offer spacious floor plan layouts for residents of our Knoxville apartments to pick from, including one-bedroom apartments, two-bedroom apartments, three-bedroom apartments, four-bedroom apartments, and five-bedroom apartments. With so many floor plans to choose between, residents are sure to find a layout that suits their unique needs!